Last update: 29-04-2026, 08:41

REF: MR-1898

House with swimming pool

Leiria - Pombal - Carriço

€ 530.000

quartos

5

casas de banho

5

garagens

1

area casa m2

347m2

area total m2

2080m2

certificado energetico

D

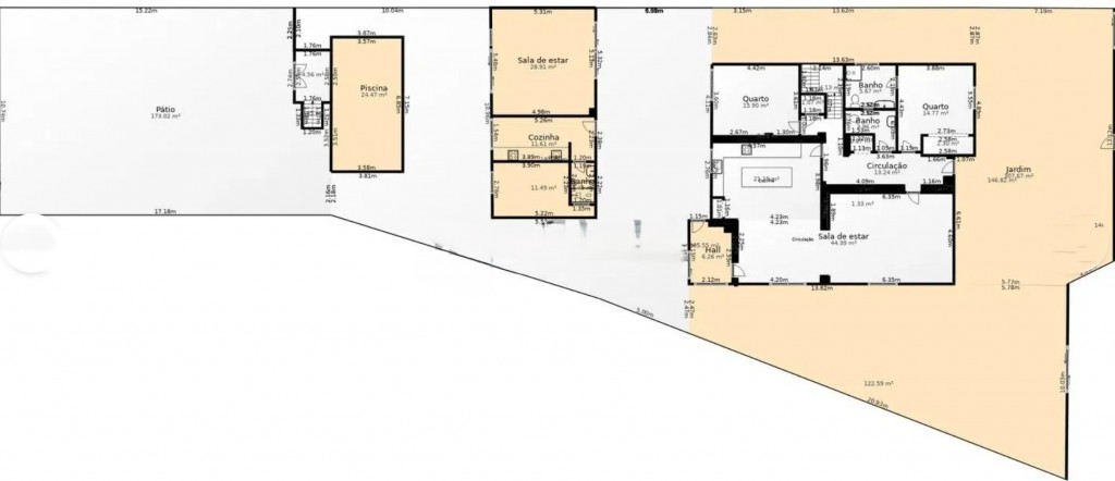
5 bedroom detached house with swimming pool and outbuilding, set in a land of about 2080m2(approx. 0.51 acre). The house has 2 floors, and the ground floor consists of: a hall with built-in wardrobe, a living room with a Rocal wall-hung stove, a dining room/kitchen with an island and Dekton countertops, a pantry, a bedroom/office, a bathroom, and a suite (bedroom with built-in wardrobes and bathroom with shower). The first floor consists of: a hall, two bedrooms with built-in wardrobes, a bathroom with shower, and a suite (a spacious bedroom with a closet, balcony, and private bathroom with shower). The house has floors made entirely of 8 mm vinyl flooring. The house is equipped with some appliances in the kitchen (hob, oven, extractor, microwave, refrigerator-freezer, dishwasher), electric shutters, central heating with a heat pump, and automatic gates. On the back, there is an outbuilding consists of:  a hall, a bathroom with a shower, a spacious living room/kitchen equipped with (hob, oven, extractor), with access to the terrace with a barbecue and pool area, and a laundry/utility room. The property is partially walled/fenced, has an 8 x 4 m swimming pool (with pre-installation for a heat pump), a low-maintenance garden, and a double garage  with automatic gate. The remaining land has several fruit trees. The gross floor area is approximately 347 m2.

This house is in excellent condition, has good areas and was completely renovated in 2024 with high-quality materials. Furniture, curtains, lamps, paintings, mirrors, and decor are included. It is located in a quiet location with plenty of privacy, has good sun exposure, good access and nice views. It is about 8 km from Osso da Baleia Beach, 20 km from Pombal,  18 km from Figueira da Foz, and about 5 km from an entry   to the A17 highway and IC8. In this area, you will find banks, schools, a health center, a pharmacy, a post office, cafes, bakeries, supermarkets, shops, services, etc.

Privacy Policy

Neves & Terlouw Lda acts to comply with Regulation (EU) 2016/679 of 27 April 2016 and its guidelines.