Bijgewerkt op: 10-04-2026, 17:27

REF: MR-1914

Ontwikkelingsproject

Leiria - Leiria - Grou

€ 55.000

quartos

0

casas de banho

0

garagens

0

area casa m2

0m2

area total m2

2615m2

certificado energetico

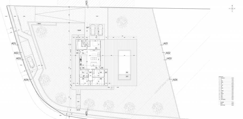
Bouwkavel met een oppervlak van ca. 2.615 m² met een bouwvergunning voor een moderne begane gron dwoning met 4 slaapkamers en een zwembad. Elektriciteit en openbaar water zijn in de buurt.

Het is gelegen een rustige locatie met veel privacy, goede zonligging, goede toegang en mooi uitzicht. Het ligt op ongeveer 3 km van de Lagoa da Ervedeira, ongeveer 9 km van praia do Pedrógão en ongeveer 9 km van een oprit naar de A17 snelweg. In dit gebied zijn er: postkantoor, apotheek, gezondheidscentrum, school, supermarkt, winkels, cafés / gebak, restaurants, diensten, enz.

Vergelijkbare Objecten

Privacybeleid

Neves & Terlouw Lda. Handelt zodanig om te voldoen aan het Regulament (EU) 2016/679 van 27 april 2016 en zijn richtlijnen.